Contact for price
Affordable Professional Mechanical HVAC Engineering for Permit
Description
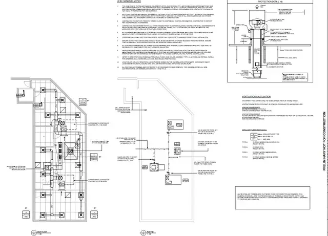
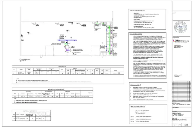
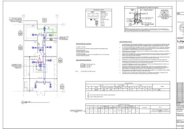
We are Professional Engineer registered in Alberta and BC, practicing (MEP) Design and Drafting for quick and affordable HVAC, Plumbing and Electrical design services for the City Building Permit Development Permit and Construction documentation. We do tenant improvement, and Base Building specialized in Auto Repair garage, Restaurant, Warehouse, Daycare, Doctors Office, Beauty/ Barber Shop and retail commercial spaces for Tenant Fit up. Our recent projects:
● Restaurant- 1. Red Shawn Pizza Calgary, FUWA FUWA Calgary, Langley and Vancouver-4 Restaurant 2. KFC Calgary and Edmonton -3 Restaurant 3. GO-GRILL Calgary, Vernon and Toronto -4 Restaurant 4. Bikaner Banquet, Bikaner Bar at Calgary 5. Red Shawn Pizza, Big Foot Pizza at Calgary and Edmonton. 6. Bubble Tea at Calgary-2 stores
● Automobile Repair Shop (Canadian Autobody 19th st NE, Auto shop at 3M Plaza NE, Calgary, Jack Auto 820, 28th Street NE Calgary)
● Childcare (Step by Step 11th Street SE Calgary)
● Warehouse (12th Street SE Calgary)
● Liquor Store (Dufferin BLVD, SE Calgary)
● Grocery and Food Store (Pacific Foods, Airdrie)
● Town house (Sage Hill Multifamily, Calgary Bay Springs, Airdrie)
● Estate House (Okotoks, AB)
● Cycle Store (Ridley's Cycle, SE Calgary)
● Day care at Claresholm, AB
● Pharmacy, Edmonton, Calgary, AB, Strathcona Pharmacy Calgary SW
We have also done many small Coffee shop, Macao Tea, Purr Tea, and office space TI-Projects. We are Professional Engineer registered in Alberta, BC, and Ontario. If your facility is more than 500 sqm you may require stamping and field review. Schedule B and NECB Check list will be provided. Quality drawing and Design are prepared based on National Building Code of Canada-Alberta version, OBC, BCBC, NFPA, ASHRAE, CEC and National Fire Code. If interested, please contact 403-402-5021 for more information.
Sincerely,
Jahurul Haque, P.Eng
JHaq Engineering Ltd
jhaqe.com
info@jhaqe.com
● Restaurant- 1. Red Shawn Pizza Calgary, FUWA FUWA Calgary, Langley and Vancouver-4 Restaurant 2. KFC Calgary and Edmonton -3 Restaurant 3. GO-GRILL Calgary, Vernon and Toronto -4 Restaurant 4. Bikaner Banquet, Bikaner Bar at Calgary 5. Red Shawn Pizza, Big Foot Pizza at Calgary and Edmonton. 6. Bubble Tea at Calgary-2 stores
● Automobile Repair Shop (Canadian Autobody 19th st NE, Auto shop at 3M Plaza NE, Calgary, Jack Auto 820, 28th Street NE Calgary)
● Childcare (Step by Step 11th Street SE Calgary)
● Warehouse (12th Street SE Calgary)
● Liquor Store (Dufferin BLVD, SE Calgary)
● Grocery and Food Store (Pacific Foods, Airdrie)
● Town house (Sage Hill Multifamily, Calgary Bay Springs, Airdrie)
● Estate House (Okotoks, AB)
● Cycle Store (Ridley's Cycle, SE Calgary)
● Day care at Claresholm, AB
● Pharmacy, Edmonton, Calgary, AB, Strathcona Pharmacy Calgary SW
We have also done many small Coffee shop, Macao Tea, Purr Tea, and office space TI-Projects. We are Professional Engineer registered in Alberta, BC, and Ontario. If your facility is more than 500 sqm you may require stamping and field review. Schedule B and NECB Check list will be provided. Quality drawing and Design are prepared based on National Building Code of Canada-Alberta version, OBC, BCBC, NFPA, ASHRAE, CEC and National Fire Code. If interested, please contact 403-402-5021 for more information.
Sincerely,
Jahurul Haque, P.Eng
JHaq Engineering Ltd
jhaqe.com
info@jhaqe.com
When you call, please mention you found this ad on OKZ.ca
Similar Listings
×